ЖК Grand House

Жилой комплекс сочетает выбранный заказчиком стиль ар-деко с мотивами из Пермского звериного стиля. Орнамент из травертина и краснокирпичные вставки подчеркивают связь с историческими зданиями города.

Год проектирования2021-2022
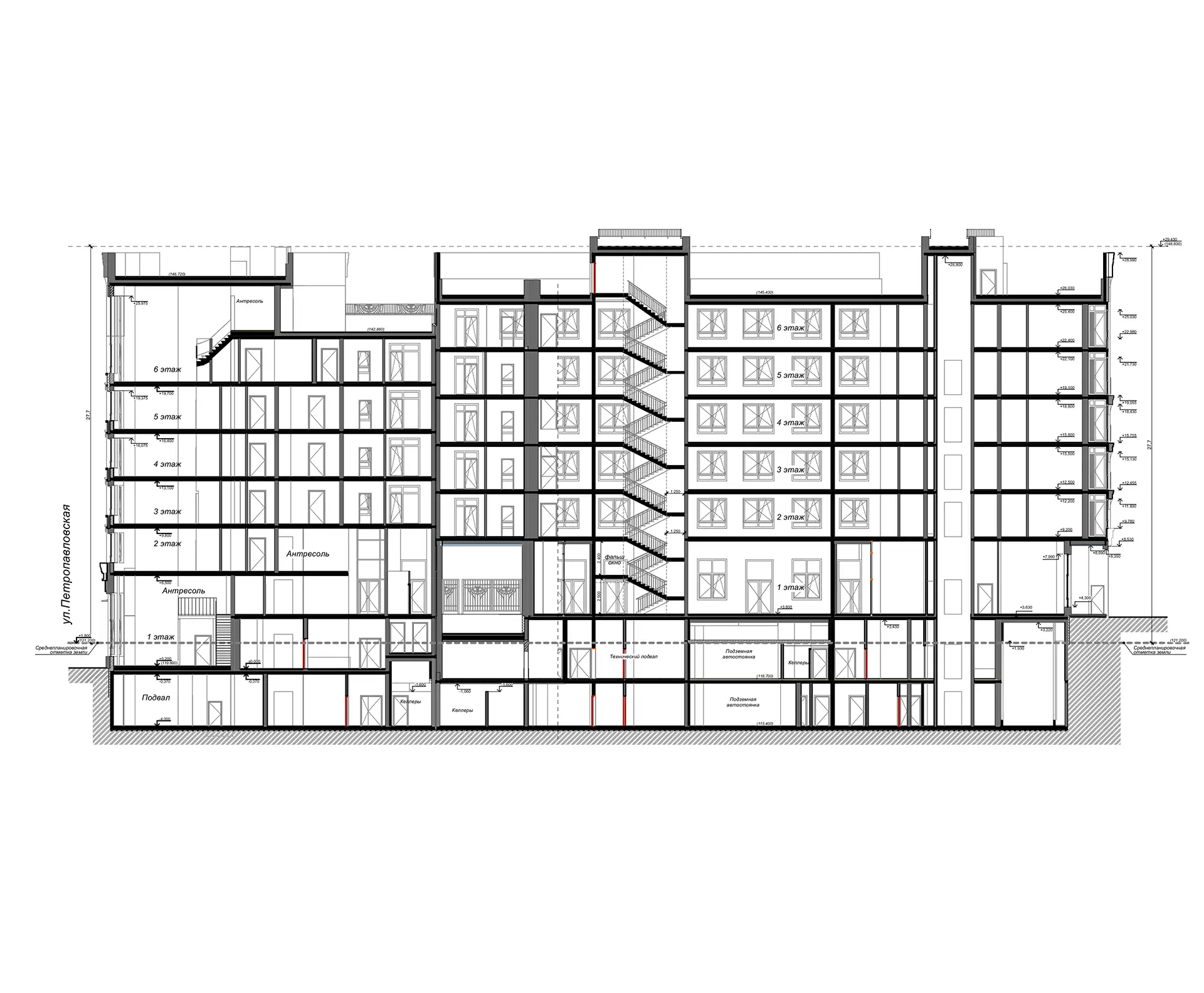
Площадь17 549 м2
ЗаказчикПМД
Местоположениег. Пермь
СтатусРеализован
ТипЖилая недвижимость